info@nibco-ug.ru
г. Краснодар, ул. Вишняковой 1/19
0
Главная > Каталог > КАНАЛИЗАЦИЯ > Инсталляция для унитазов AlcaPlast (Алкапласт) > Инсталляции ALCAPLAST Set 3v1 для установки унитаза AM101/1120-3:1RS M70-001


Инсталляции ALCAPLAST Set 3v1 для установки унитаза AM101/1120-3:1RS M70-001

*Цены на сайте актуальны только при онлайн заказе!
Скрытая система инст. 1120x150x520 для гипc. с M70 (3 в 1) ALCAPLAST(снят с произв)
(AM101/1120-3:1 RU M7)
шт
30397 р.

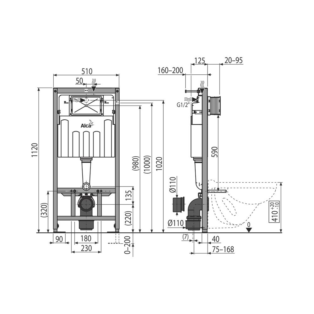
Скрытая система инсталляции 1120x150x520 для гипc. с M70 (3 в 1) ALCAPLAST

Рамный модуль для установки в гипсокартонные конструкции
Конструкция рамы позволяет установку к самостоятельной гипсокартонной перегородке или перед несущей стеной
Модуль универсально используется по расстоянию рамных болтов унитаза 180 и 230 мм
При помощи выдвижных ножек рамы можно предустановить высоту унитаза в диапазоне 200 мм
Рама оснащена качественной отделкой поверхности, обеспечивающей длительный срок службы
Установленный модуль закроется гипсокартонным листом и не нужны никакие дополнительные крепёжные элементы
Регулируемый экономичный смыв: 2–3,5 л/6–9 л
Высота монтажа: 1176 мм
Страна производителя: Чехия ​
Гарантия: 2 года

 

C этим товаром смотрят